Relevé sur Sîtes

Relevé petits ouvrages


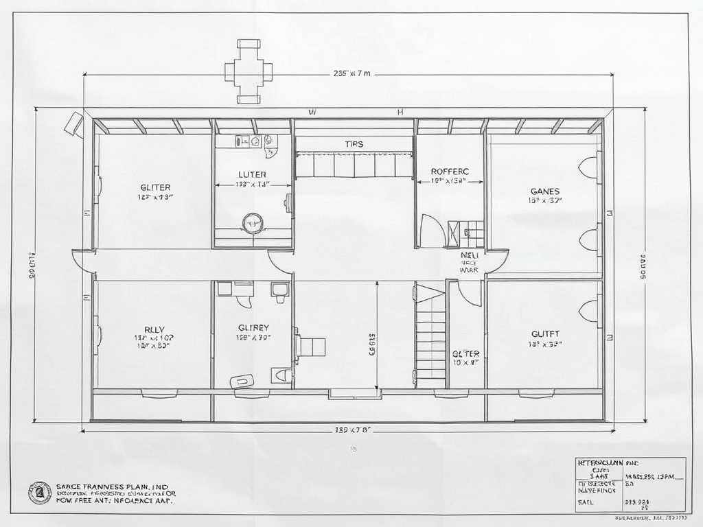
État des lieux architectural et structurel

Sols et plafonds : État des sols, plafonds, et murs intérieurs

Description de la structure : Mesure et description des murs, planchers, charpente, et couverture.

Menuiseries : État des portes, fenêtres, et autres ouvertures.

Façades et revêtements extérieurs : État des matériaux de façade, toitures, et autres éléments extérieurs.

Plomberie traditionnelle

  1. Éviers et robinets : Vérification de l’état des éviers, robinets, et systèmes de drainage.
  2. Tuyauterie et chauffage : Inspection des tuyaux, systèmes de chauffage, et systèmes de ventilation.
  3. Autres éléments : Contrôle des toilettes, arrivées d’eau, compteurs, et autres composants de plomberie.

Méthodes et outils utilisés

  • Décimètre et mètre ruban : Pour mesurer les dimensions précises.
  • Fil à plomb : Pour vérifier la verticalité.
  • Papier millimétré : Pour dessiner des plans respectant l’orthogonalité

Avis

Tom S.

Commencer mon rôle en tant qu’administrateur WordPress a été un plaisir, grâce à son interface intuitive, sa gestion des médias, sa sécurité et son intégration des extensions, ce qui rend la gestion du site Web un jeu d’enfant.

Note : 4 sur 5.

Liz S.

Commencer mon rôle en tant qu’administrateur WordPress a été un plaisir, grâce à son interface intuitive, sa gestion des médias, sa sécurité et son intégration des extensions, ce qui rend la gestion du site Web un jeu d’enfant.

Note : 2 sur 5.

Mike A.

Commencer mon rôle en tant qu’administrateur WordPress a été un plaisir, grâce à son interface intuitive, sa gestion des médias, sa sécurité et son intégration des extensions, ce qui rend la gestion du site Web un jeu d’enfant.

Note : 5 sur 5.

relevé laser lunette par nuage de point

Un relevé par nuage de points est une méthode de numérisation 3D qui permet de capturer des données extrêmement précises et détaillées de la structure d’un bâtiment ou d’un objet. Voici un aperçu du processus et des outils utilisés :

Processus de relevé par nuage de points

  1. Préparation : Avant de procéder au relevé, une étude précise et détaillée du besoin du client est réalisée. Un cahier des charges et un devis sont établis.
  2. Numérisation : Un technicien se déplace sur le site avec un scanner 3D (comme le scanner Trimble X-7) pour réaliser la numérisation. Les données capturées forment un nuage de points.
  3. Analyse et exploitation : Les données du nuage de points sont ensuite analysées et exploitées pour créer des modèles 3D, des plans, des coupes et des élévations.

Outils utilisés

  • Scanner 3D : Utilisé pour capturer les données en trois dimensions.
  • Point cloud viewer : Logiciel qui permet de visualiser et de mesurer les éléments directement à partir du nuage de points.
  • Logiciels de CAO/DAO : Utilisés pour créer des plans et des dessins techniques à partir des données numérisées.

Cette méthode est rapide, précise et économique, et elle permet de réaliser des relevés même dans des zones difficiles d’accès ou en état de dégradation avancée.